賃貸戸建
【気仙沼市】本郷貸家
賃料
7.8 万円
- 所在地
- 宮城県気仙沼市本郷15-5
- 間取り
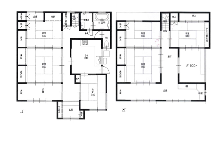
- 6DK
- 面積
- 141.48m²
- 築年月
- 昭和55年11月
| 所在地 | 宮城県気仙沼市本郷15-5 | ||
|---|---|---|---|
| 賃料 | 7.8 万円 | 管理費等 | - |
| 敷金 | 156,000円 | 礼金 | - |
| 保険等 | 要 15,000円~ 家財総合(2年間) | その他一時金 | 賃貸保証料 62,400円 |
| 契約期間 | - | 更新料 | - |
| 間取り | 6DK | 面積 | 141.48m² |
| 築年月 | 昭和55年11月 | 階建/階 | - |
| 主要採光面 | - | 建物構造・工法 | - |
| 駐車場 | 軽自動車1台 賃料込 | 駐輪場/バイク置き場 | 無 |
| 交通 | ㈱ミヤコーバス 田谷本郷バス停 徒歩4分 | 学校区 | 気仙沼 |
| 現況 | 空 | 入居可能時期 | - |
| 取引態様 | 媒介 | 仲介手数料 | 85,800円 |
| リフォーム履歴 | 令和3年4月水廻りリフォーム済 | ||
| 設備 | IHクッキングヒーター、エアコン 2台、洗面化粧台、ユニットバス、水洗トイレ、下水、市ガス、アンテナの設置または有線TVの契約が必要 | ||
| 備考 | ・家財総合保険加入15,000円~(2年間) ・賃貸保証会社加入 |
||